Villa singola in vendita

Santa Maria Di Sala, Via Albinoni - Caselle
€ 500.000
Prezzo aggiornato
5 locali 5 locali
488 Mq 488 Mq
5 bagni 5 bagni

Villa singola in vendita

Santa Maria Di Sala, Via Albinoni - Caselle

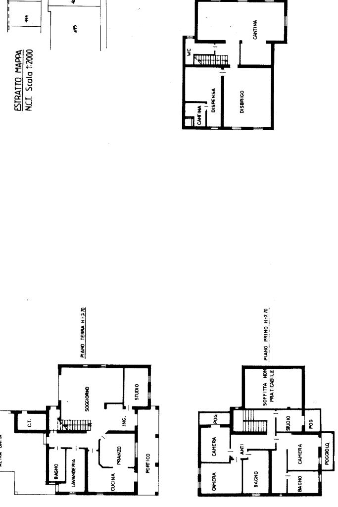
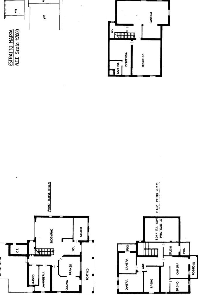
Descrizione annuncio

CASELLE - Proponiamo in vendita villa di pregio in un quartiere signorile di Caselle.

La casa si distingue per la metratura importante, stanze ampie e luminose e finiture di valore.

Disposta su due piani, oltre al piano interrato, destinato a taverna completa di cucina,sala giochi-relax e bagno.

Al piano terra dell'abitazione si trovano un'elegante salone di circa 50 mq con scala a vista, una cucina abitabile con sala da pranzo adiacente, una comoda lavanderia, bagno con doccia e garage con spazio per tre auto.

Nella zona notte, al primo piano, si trovano quattro stanze di cui una con cabina armadio e bagno padronale con vasca. Sempre al primo piano si trovano altri due bagni.

A completare la proprietà troviamo un ampio giardino di circa 600 mq, in parte verde ed in parte piastrellato, ideale per vivere al meglio gli spazi esterni in ogni stagione.

Una pompeiana alta e spaziosa offre posto auto coperto, mentre la zona barbecue con camino esterno rende l'ambiente perfetto per pranzi e cene all'aperto in compagnia.

Posizione comoda per raggiungere i centri di Mirano,Treviso,Noale e Padova.

LA POSIZIONE E' APPROSSIMATIVA PER PRIVACY

Mostra tutto

Nelle vicinanze

Trasporto pubblico Trasporto pubblico
Trasporto pubblico
2,6 Km
Scuole Scuole
Scuola primaria "E.F. di Savoia"
2,0 Km
Scuole
2,1 Km
Ic Cordenons di Santa Maria di Sala
2,4 Km
Campo Scuola Permanente dell'Educazione Stradale
2,6 Km
Supermercati Supermercati
Cuor di Crai
410 m
Centro Commerciale
1,2 Km
Negozi Negozi
Combipel
700 m
Bar Bar
Bar Marilyn
640 m
Ristoranti Ristoranti
Pizzeria la Perla Piccola
570 m
Pizzeria Caravelle
1,8 Km
Trattoria da Pulliero
2,2 Km
Meridiana
2,3 Km
Trattoria da Jolanda
2,7 Km
Mostra tutto

Caratteristiche

Rif.:
61105924
Piano:
3 di 2 (Piano su più livelli)
Box:
1
Posti auto:
6
Terrazzi:
3
Camere da letto:
4
Mostra tutto
Prezzo Prezzo
€ 500.000
Rata mutuo Rata mutuo
€ 2.373 / mese
Spese annue Spese annue
€ 0
Proponi il tuo prezzoProponi il tuo prezzo

Classe Energetica

C
C
C
C
C
C
C
C
C
EP globale non rinnovabile:
160.32 kW h/m² anno
EP globale rinnovabile:
160.32 kW h/m² anno
EP invernale del fabbricato:
EP estiva del fabbricato:
Anno di costruzione:
1992
Riscaldamento:
Autonomo
Tipo impianto:
A pavimento
Tipo alimentazione:
Metano

Prezzo ridotto di €1 (4%%)

Ti interessa visionare l'immobile?

Fissa un appuntamento  Fissa un appuntamento

Richiedi informazioni

Clicca su Leggi per aprire l'informativa
* Questi campi sono obbligatori

Calcola il tuo mutuo

Semplice e senza impegno
Anticipo

( % )
Mutuo

( % )

pochi semplici passi

inserisci i tuoi dati
Questionario completato
Grazie per aver richiesto un appuntamento senza impegno con un nostro Consulente del Credito e Assicurativo.

Hai inserito correttamente tutti i dati necessari e a breve riceverai una e-mail con un link da convalidare per inviare i tuoi dati.
Affiliato
Pianicase Srl
Via Noalese Sud, 8 30030 Pianiga (VE)

Il nostro staff


  • Alessandro Carraro
    Affiliato

  • Elisa Stefan
    Responsabile

  • Daniela Galusca
    Collaboratrice

  • Giada Trevisin
    Collaboratrice
Via Noalese Sud, 8 30030 Pianiga (VE)
Zona: Pianiga - Mellaredo - Rivale - Cazzago - Santa Maria di Sala e frazioni
Mostra su mappa
Orari: Lunedì-Venerdì: 08.30-12.30/15.00-19.30 Sabato: 09.00-13.00
Affiliato
Pianicase Srl
Via Noalese Sud, 8 30030 Pianiga (VE)

2026 Tecnocasa Franchising S.p.A. - P. IVA 08365160152 - Via Monte Bianco 60/A 20089 Rozzano (MI). Ogni agenzia ha un proprio titolare ed è autonoma. Privacy policy | Policy utilizzo | Cookie policy