Casa indipendente in vendita

Pianiga, Via roma
€ 167.000
Prezzo aggiornato
5 locali 5 locali
190 Mq 190 Mq
2 bagni 2 bagni

Casa indipendente in vendita

Pianiga, Via roma

Descrizione annuncio

PIANIGA - Nel cuore di Pianiga, comoda a tutti i servizi principali, proponiamo casa singola da ristrutturare, con ampio giardino privato.

L'immobile si presta perfettamente alla realizzazione di due appartamenti, ideale per due nuclei familiari, genitori e figli oppure come investimento.

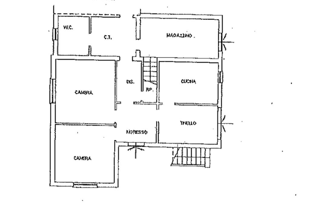
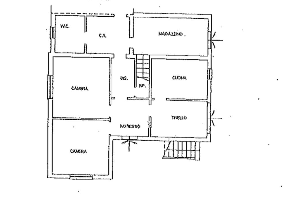
La casa è attualmente composta al piano terra da ; cucina abitabile con tinello dove è possibile creare un soggiorno, due camere matrimoniali, wc e magazzino.

Attraverso una scala interna si accede poi al piano superiore dove la distribuzione degli spazi è speculare tra i due piani e rende particolarmente semplice la suddivisione in due unità.

Completa la proprietà un giardino privato, con possibilità di realizzare una pompeiana esterna , ideale per creare una zona living all'aperto o posti auto coperti.

LA POSIZIONE E' APPROSSIMATIVA PER PRIVACY.

Mostra tutto

Nelle vicinanze

Trasporto pubblico Trasporto pubblico
Vigonza-Pianiga
Vigonza-Pianiga
1,8 Km
Scuole Scuole
Scuole
1,2 Km
Scuola Media Don Milani
2,8 Km
Scuola Primaria "Ruzante"
2,9 Km
Supermercati Supermercati
Ali
3,0 Km
Centro Commerciale
3,0 Km
Negozi Negozi
Panificio Pasticceria San Martino
1,1 Km
Bar Bar
Bar Centrale
1,9 Km
Ristoranti Ristoranti
Tratoria da Paeto
1,8 Km
Antichi Sapori
1,9 Km
Pizzeria Caravelle
2,4 Km
Marchioro
2,9 Km
Mostra tutto

Caratteristiche

Rif.:
61182106
Piano:
Su più livelli di 1
Totale piani:
1
Box:
1
Balconi:
1
Terrazzi:
1
Mostra tutto
Prezzo Prezzo
€ 167.000
Rata mutuo Rata mutuo
€ 780 / mese
Spese annue Spese annue
€ 0
Proponi il tuo prezzoProponi il tuo prezzo

Classe Energetica

G
G
G
G
G
G
G
G
G
EP globale non rinnovabile:
195.06 kW h/m² anno
EP invernale del fabbricato:
EP estiva del fabbricato:
Anno di costruzione:
1950
Riscaldamento:
Assente

Prezzo ridotto di €1 (33%%)

Ti interessa visionare l'immobile?

Fissa un appuntamento  Fissa un appuntamento

Richiedi informazioni

Clicca su Leggi per aprire l'informativa
* Questi campi sono obbligatori

Calcola il tuo mutuo

Semplice e senza impegno
Anticipo

( % )
Mutuo

( % )

pochi semplici passi

inserisci i tuoi dati
Questionario completato
Grazie per aver richiesto un appuntamento senza impegno con un nostro Consulente del Credito e Assicurativo.

Hai inserito correttamente tutti i dati necessari e a breve riceverai una e-mail con un link da convalidare per inviare i tuoi dati.
Affiliato
Pianicase Srl
Via Noalese Sud, 8 30030 Pianiga (VE)

Il nostro staff


  • Alessandro Carraro
    Affiliato

  • Elisa Stefan
    Responsabile

  • Daniela Galusca
    Collaboratrice

  • Giada Trevisin
    Collaboratrice
Via Noalese Sud, 8 30030 Pianiga (VE)
Zona: Pianiga - Mellaredo - Rivale - Cazzago - Santa Maria di Sala e frazioni
Mostra su mappa
Orari: Lunedì-Venerdì: 08.30-12.30/15.00-19.30 Sabato: 09.00-13.00
Affiliato
Pianicase Srl
Via Noalese Sud, 8 30030 Pianiga (VE)

2026 Tecnocasa Franchising S.p.A. - P. IVA 08365160152 - Via Monte Bianco 60/A 20089 Rozzano (MI). Ogni agenzia ha un proprio titolare ed è autonoma. Privacy policy | Policy utilizzo | Cookie policy