Casa indipendente in vendita

Pianiga, Via Lago di Garda - Cazzago
€ 252.000
Prezzo aggiornato
4 locali 4 locali
170 Mq 170 Mq
2 bagni 2 bagni

Casa indipendente in vendita

Pianiga, Via Lago di Garda - Cazzago

Descrizione annuncio

Nel pieno centro di Cazzago, proponiamo una splendida casa singola sviluppata su due piani.

La proprietà dispone di un ampio giardino privato,su tutti e quattro i lati.


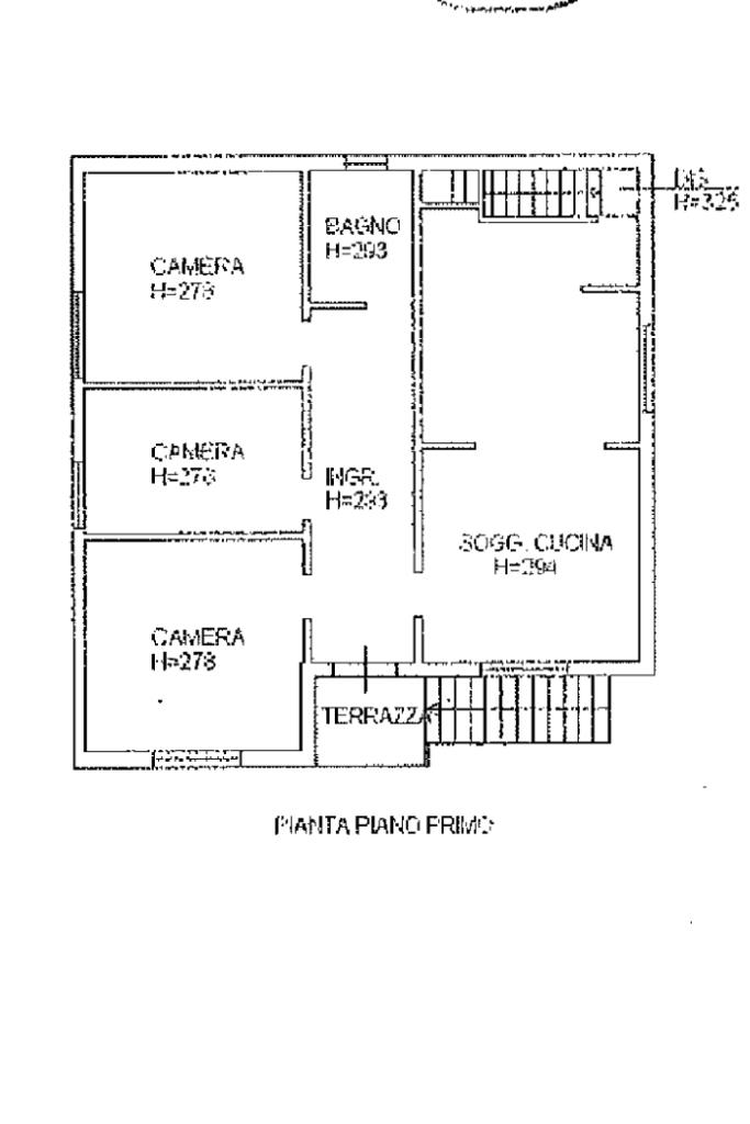
Al primo piano si accede alla parte principale dell’abitazione, caratterizzata da ambienti luminosi e ben distribuiti.

Troviamo un accogliente soggiorno con la spaziosa cucina open-space.
A seguire tre camere da letto ampie e ben illuminate, perfette per famiglie numerose ed un bagno finestrato con vasca.


Il piano terra, con altezza interna di 2 metri
si compone da un cucinino comodo e funzionale, ideale come supporto alla zona taverna, una lavanderia ed una stanza multifunzionale e versatile.


A completare la proprietà un garage capiente, con accesso diretto al vano tecnico, utile come zona di deposito.

Si precisa che l'abitazione è stata recentemente ristrutturata;è stata sostituita la caldaia, è stato fatto un cappotto interno da 5 cm,le tapparelle sono nuove, il tetto è stato rifatto 10 anni fa e ricontrollato l'anno scorso.

LA POSIZIONE E' APPROSSIMTIVA PER PRIVACY.

Mostra tutto

Nelle vicinanze

Trasporto pubblico Trasporto pubblico
Dolo
Dolo
1,1 Km
Dolo - Mellaredo
Dolo - Mellaredo
380 m
Dolo
Dolo
450 m
Scuole Scuole
Scuole
400 m
Liceo statale Galileo Galilei
1,8 Km
ENAIP Centro Servizi Formativi di Dolo
2,1 Km
Ospedali Ospedali
Ospedale di Dolo
2,3 Km
Supermercati Supermercati
Iper Lando
260 m
Horeca Brenta
840 m
Supermercati
1,5 Km
Alì
1,6 Km
Negozi Negozi
Andy's
1,7 Km
Charleston Clothing Division
2,3 Km
Ristoranti Ristoranti
Gusto Giusto Cicchetteria
830 m
El Venexian
1,3 Km
Ristoranti
1,4 Km
Da Denis
1,6 Km
Ristop
1,7 Km
Mostra tutto

Caratteristiche

Rif.:
61162134
Piano:
Su più livelli di 1
Totale piani:
1
Box:
1
Balconi:
1
Terrazzi:
1
Mostra tutto
Prezzo Prezzo
€ 252.000
Rata mutuo Rata mutuo
€ 1.187 / mese
Proponi il tuo prezzoProponi il tuo prezzo

Classe Energetica

D
D
D
D
D
D
D
D
D
EP globale non rinnovabile:
126.30 kW h/m² anno
EP invernale del fabbricato:
EP estiva del fabbricato:
Anno di costruzione:
1967
Riscaldamento:
Autonomo
Tipo impianto:
A radiatori
Tipo alimentazione:
Metano

Prezzo ridotto di €1 (3%%)

Ti interessa visionare l'immobile?

Fissa un appuntamento  Fissa un appuntamento

Richiedi informazioni

Clicca su Leggi per aprire l'informativa
* Questi campi sono obbligatori

Calcola il tuo mutuo

Semplice e senza impegno
Anticipo

( % )
Mutuo

( % )

pochi semplici passi

inserisci i tuoi dati
Questionario completato
Grazie per aver richiesto un appuntamento senza impegno con un nostro Consulente del Credito e Assicurativo.

Hai inserito correttamente tutti i dati necessari e a breve riceverai una e-mail con un link da convalidare per inviare i tuoi dati.
Affiliato
Pianicase Srl
Via Noalese Sud, 8 30030 Pianiga (VE)

Il nostro staff


  • Alessandro Carraro
    Affiliato

  • Elisa Stefan
    Responsabile

  • Daniela Galusca
    Collaboratrice

  • Giada Trevisin
    Collaboratrice
Via Noalese Sud, 8 30030 Pianiga (VE)
Zona: Pianiga - Mellaredo - Rivale - Cazzago - Santa Maria di Sala e frazioni
Mostra su mappa
Orari: Lunedì-Venerdì: 08.30-12.30/15.00-19.30 Sabato: 09.00-13.00
Affiliato
Pianicase Srl
Via Noalese Sud, 8 30030 Pianiga (VE)

2026 Tecnocasa Franchising S.p.A. - P. IVA 08365160152 - Via Monte Bianco 60/A 20089 Rozzano (MI). Ogni agenzia ha un proprio titolare ed è autonoma. Privacy policy | Policy utilizzo | Cookie policy