Trilocale in vendita

Pianiga, Via Falcone e Borsellino - Mellaredo
€ 159.000
3 locali 3 locali
80 Mq 80 Mq
1 bagno 1 bagno

Trilocale in vendita

Pianiga, Via Falcone e Borsellino - Mellaredo

Descrizione annuncio

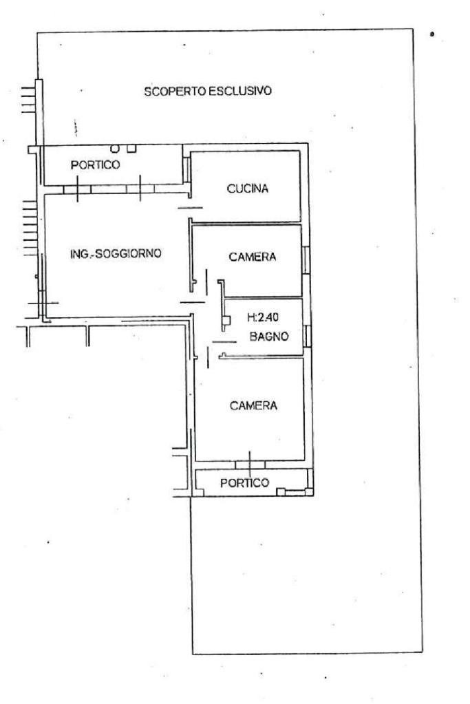
MELLAREDO- In un complesso residenziale tranquillo e ben tenuto, proponiamo in vendita un appartamento al piano terra caratterizzato da un ampio giardino privato che abbraccia l’abitazione su tre lati, ideale per chi cerca spazio all’aperto.

L’ingresso si apre su un accogliente soggiorno, con cucina separata e funzionale, dalla quale è possibile accedere direttamente al giardino.

La zona notte è composta da disimpegno, il quale mi fa accedere ad una camera singola perfetta come studio o cabina armadio, una camera matrimoniale anch’essa con accesso al giardino, e un bagno finestrato dotato di doccia.

A completare la proprietà troviamo un garage interrato comodo e facilmente raggiungibile.

Soluzione perfetta per chi desidera vivere in un ambiente gradevole, con spazi esterni vivibili e una distribuzione interna pratica e ben organizzata.

LA POSIZIONE E' APPROSSIMATIVA PER PRIVACY.

Mostra tutto

Nelle vicinanze

Trasporto pubblico Trasporto pubblico
Vigonza-Pianiga
Vigonza-Pianiga
2,9 Km
Ricariche auto elettriche Ricariche auto elettriche
VIGONZA Costituzione | BECHARGE
2,1 Km
Scuole Scuole
Scuole
1,8 Km
Scuola Media Don Milani
1,9 Km
Scuola Primaria "Ruzante"
2,2 Km
Scuola Primaria "Guglielmo Marconi"
2,5 Km
Scuola Primaria “Bonaventura da Peraga”
2,5 Km
Ospedali Ospedali
Ospedali
2,5 Km
Supermercati Supermercati
Ali
1,8 Km
Centro Commerciale
2,6 Km
Negozi Negozi
Panificio Pasticceria San Martino
3,0 Km
Bar Bar
Bar Centrale
190 m
Caffè Degli Artisti
2,1 Km
Movembik
2,2 Km
Ristoranti Ristoranti
Ostaria da Ciccio
1,3 Km
Marchioro
1,9 Km
Antichi Sapori
2,8 Km
Trattoria Piccolo Giorgio
2,8 Km
Pizzeria Gelateria Tre Stelle
2,8 Km
Mostra tutto

Caratteristiche

Rif.:
61147658
Piano:
Terra con giardino di 2
Totale piani:
2
Box:
1
Camere da letto:
2
Arredamento:
Completo
Mostra tutto
Prezzo Prezzo
€ 159.000
Rata mutuo Rata mutuo
€ 749 / mese
Spese annue Spese annue
€ 600
Proponi il tuo prezzoProponi il tuo prezzo
Immobile valutato con T·Valuta

Classe Energetica

D
D
D
D
D
D
D
D
D
EP globale non rinnovabile:
101.35 kW h/m² anno
EP globale rinnovabile:
101.35 kW h/m² anno
EP invernale del fabbricato:
EP estiva del fabbricato:
Anno di costruzione:
2005
Riscaldamento:
Autonomo
Tipo impianto:
A radiatori
Tipo alimentazione:
Metano

Ti interessa visionare l'immobile?

Fissa un appuntamento  Fissa un appuntamento

Richiedi informazioni

Clicca su Leggi per aprire l'informativa
* Questi campi sono obbligatori

Calcola il tuo mutuo

Semplice e senza impegno
Anticipo

( % )
Mutuo

( % )

pochi semplici passi

inserisci i tuoi dati
Questionario completato
Grazie per aver richiesto un appuntamento senza impegno con un nostro Consulente del Credito e Assicurativo.

Hai inserito correttamente tutti i dati necessari e a breve riceverai una e-mail con un link da convalidare per inviare i tuoi dati.
Affiliato
Pianicase Srl
Via Noalese Sud, 8 30030 Pianiga (VE)

Il nostro staff


  • Alessandro Carraro
    Affiliato

  • Elisa Stefan
    Responsabile

  • Daniela Galusca
    Collaboratrice

  • Giada Trevisin
    Collaboratrice
Via Noalese Sud, 8 30030 Pianiga (VE)
Zona: Pianiga - Mellaredo - Rivale - Cazzago - Santa Maria di Sala e frazioni
Mostra su mappa
Orari: Lunedì-Venerdì: 08.30-12.30/15.00-19.30 Sabato: 09.00-13.00
Affiliato
Pianicase Srl
Via Noalese Sud, 8 30030 Pianiga (VE)

2026 Tecnocasa Franchising S.p.A. - P. IVA 08365160152 - Via Monte Bianco 60/A 20089 Rozzano (MI). Ogni agenzia ha un proprio titolare ed è autonoma. Privacy policy | Policy utilizzo | Cookie policy